10 Best Open Floor Plan House Plans in 2026 (Layouts, Pros & Real Examples)


Share:
Table of Contents
- 1. Why open floor plan house plans remain popular in 2026
- 2. Key trends influencing open floor plan house plans in 2026
- 3. Best open floor plan house plans gaining popularity in 2026
- • 3.1. Open concept home design with central great room
- • 3.2. Open floor plan with kitchen living room layout integration
- • 3.3. Modern open layout with split bedroom concept
- • 3.4. Open floor plan with flexible workspace area
- • 3.5. Compact open layouts for smaller homes
- • 3.6. Open layouts with indoor-outdoor connection
- • 3.7. Open floor plan with minimal hallway design
- • 3.8. Open layout with multifunctional living zones
- • 3.9. Open concept layout with private master suite
- • 3.10. Open floor plan with storage-focused design
- 4. Open vs closed floor plan: Advantages, disadvantages, and 2026 trends
- 5. Common mistakes to avoid when choosing open floor plan house plans
- 6. How presentation impacts open floor plan appeal in real estate
- 7. FAQs about open floor plan house plans
- Conclusion
The best open floor plan house plans in 2026 focus on flexibility, natural lighting, efficient circulation, and adaptable living spaces. The most practical layouts typically include a central great room, integrated kitchen and living areas, split bedroom designs, and hybrid zoning strategies that balance openness with privacy.
For most buyers, the goal is no longer maximizing size. Instead, it is maximizing how effectively the home supports everyday living. Open floor plan house plans combine kitchen, dining, and living areas into a single connected space. In 2026, the best layouts focus on flexible zoning, natural light, and efficient circulation, making homes feel larger and more functional without increasing square footage.
1. Why open floor plan house plans remain popular in 2026
The continued popularity of open floor plan house plans in 2026 reflects a major shift in how homeowners evaluate living space. Instead of focusing on room count or traditional layouts, buyers now prioritize usability, flexibility, and how efficiently a home supports daily routines. Modern homes are expected to function as adaptable living environments rather than a series of separated rooms.
Traditional layouts often allocated significant space to areas with limited practical use, such as formal dining rooms, duplicate living areas, and long interior hallways. While these features once reflected social conventions, they no longer match contemporary lifestyles where open interaction and efficient space use are more important.
Modern designs solve these issues by combining kitchen, dining, and living areas into a central shared space. This reflects the growing demand for a modern open layout that prioritizes visibility, movement, and adaptability over rigid room separation. The efficiency gains can be substantial. A traditional 1800 sq ft home may dedicate 200–300 sq ft to circulation space, while a well-designed open layout may reduce this to around 80–120 sq ft. The recovered space can then be used for functional areas such as a home office or expanded living zone.
This improved efficiency remains one of the key benefits of open floor plan design. By reducing wasted space and improving livability without increasing construction costs, these layouts continue to define modern housing preferences.
2. Key trends influencing open floor plan house plans in 2026
The evolution of open floor plan house plans in 2026 is driven less by aesthetics and more by functionality. Modern buyers expect homes to support flexible living, remote work, energy efficiency, and long-term usability. As a result, layouts today are designed to adapt to lifestyle needs rather than forcing homeowners to adapt to rigid structures. Understanding these trends helps buyers identify layouts that will remain practical and valuable over time.
2.1. Flexible and hybrid living spaces
Flexibility has become one of the most important priorities in modern housing. Instead of designing rooms for single purposes, today’s layouts focus on multifunctional spaces that can support different activities throughout the day.
A typical home may function as a workspace, social area, entertainment zone, and relaxation space depending on the time of day. To support this, designers increasingly create adaptable spaces such as living areas that double as work zones or guest rooms that function as home offices. This approach allows homeowners to adjust how spaces are used without renovation and remains a major reason buyers prefer open floor plan house plans over traditional layouts.
2.2. Zoned open concept home design strategies
Although open layouts remove walls, they still require structure. The most effective designs use zoning techniques to organize space rather than relying on physical separation.
Designers typically define zones through furniture placement, lighting variation, kitchen islands, or floor transitions. These strategies help create clear social areas, work zones, and circulation paths while maintaining openness. A successful open layout should feel organized and intentional rather than simply large.
2.3. Kitchen-centered layouts
Modern layouts increasingly position the kitchen as the central hub of the home. Rather than being isolated, kitchens now connect directly to living areas to support interaction and daily functionality.
A well-designed kitchen living room layout improves usability by supporting communication, improving hosting capability, and reducing unnecessary barriers. Features such as large islands, integrated storage, and open circulation paths further improve functionality. Because the kitchen now serves both social and functional roles, its placement often determines how successful an open layout will be.
2.4. Sustainability and natural light trends
Energy efficiency is also shaping modern layout decisions. Homes designed to maximize natural light often feel larger, reduce electricity use, and improve resale appeal.
Key strategies include window placement, cross ventilation, reduced hallway depth, and open sightlines that allow light to travel throughout the home. These improvements can significantly enhance comfort without increasing square footage. This is why well-designed open modern home floor plans often outperform larger homes that lack efficient lighting and spatial planning.
3. Best open floor plan house plans gaining popularity in 2026
As buyer expectations continue to evolve, certain types of house plans are becoming increasingly popular because they solve real usability challenges such as flexibility, privacy balance, and space efficiency. Rather than focusing purely on aesthetics, these layouts are designed to improve how homeowners actually live day-to-day.
Understanding which layouts are gaining traction and why helps buyers select homes that will remain functional and valuable long term.
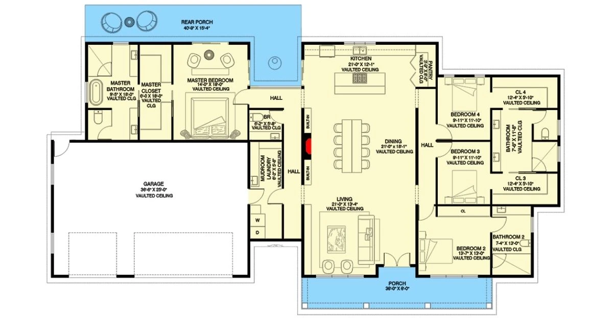
3.1. Open concept home design with central great room
One of the most effective modern strategies is organizing the home around a central shared living space, often referred to as a great room. This layout connects the living room, kitchen, and dining space while placing bedrooms around the perimeter to maintain privacy.

Open concept home design
This type of open concept home design works because it reflects natural living patterns, where most daily activities happen in shared spaces rather than isolated rooms. Key advantages include improved interaction, reduced unused rooms, and better space efficiency. This layout is especially suitable for families, first-time buyers, and homeowners who frequently entertain, making it one of the most practical open floor plan house plans for long-term usability. While central living improves interaction, another highly demanded configuration focuses on improving daily movement between the most used spaces.
3.2. Open floor plan with kitchen living room layout integration
Integrating kitchen and living areas remains one of the most practical modern layouts because it improves how people naturally move and interact within the home.

Kitchen living room layout
A well-designed kitchen living room layout allows cooking, socializing, and relaxing to occur within the same visual space, improving both usability and perceived spaciousness. This layout improves daily functionality by enhancing communication, improving hosting capability, and reducing unnecessary circulation areas. Because it aligns closely with modern lifestyle needs, it remains one of the most reliable open floor plan house plans, particularly for young couples, first-time buyers, and rental investors.
While openness improves interaction, many buyers still require privacy, which leads to the continued popularity of split bedroom designs.
3.3. Modern open layout with split bedroom concept
Split bedroom layouts separate the primary bedroom from secondary bedrooms to improve privacy without sacrificing open shared spaces. This type of modern open layout helps reduce noise transfer, improve guest comfort, and support long-term family living. It is especially suitable for families, shared living arrangements, and buyers planning to stay long term.

Split bedroom layouts
As lifestyles continue to change, another major factor influencing layout decisions is the need for workspace flexibility.
3.4. Open floor plan with flexible workspace area
Remote work has reshaped residential design priorities. Instead of building separate offices, modern layouts often integrate small workspace areas such as desk niches or convertible rooms.

Flexible workspace layout
This approach allows homes to support productivity without increasing square footage, improving adaptability while reducing construction costs. These layouts are particularly attractive to remote professionals, freelancers, and entrepreneurs. As efficiency becomes more important, this leads to another growing trend: optimizing layouts for smaller homes.
3.5. Compact open layouts for smaller homes
Smaller homes benefit significantly from open layouts because they minimize wasted space. Designers often reduce hallway space from around 12–15% of total area to about 5–7% through better planning.

Open layouts for small home
This recovered space can significantly improve living usability, demonstrating how smart layouts can outperform larger homes with inefficient planning. These designs are particularly attractive to budget buyers, downsizers, and minimalist homeowners. Beyond efficiency, lifestyle quality is also influencing layout trends, particularly through indoor-outdoor integration.
3.6. Open layouts with indoor-outdoor connection
Modern housing increasingly connects interior living spaces with outdoor environments through features such as sliding doors, patios, and outdoor dining areas.

Layout with indoor-outdoor connection
This strategy increases perceived space without increasing construction size while also improving natural lighting and ventilation. These layouts are especially appealing to lifestyle buyers, homeowners in warm climates, and those who frequently entertain. Efficiency inside the home also depends on minimizing non-functional areas such as hallways.
3.7. Open floor plan with minimal hallway design
Modern open floor plan house plans reduce hallway space wherever possible because these areas provide movement but little functional value.

Hallway space floor plan
For example, reducing hallway space from about 150 sq ft to around 70 sq ft can recover enough usable space for a small office or expanded living area. This efficiency is one of the biggest advantages of well-designed open layouts. Beyond reducing wasted space, another important trend focuses on improving flexibility through multifunctional rooms.
3.8. Open layout with multifunctional living zones
Modern layouts increasingly avoid single-purpose rooms in favor of spaces that support multiple activities. Living areas may also function as media rooms, while guest rooms may double as offices.

This flexibility improves long-term usability and allows homeowners to adapt their homes as needs change. These layouts are especially popular among young professionals and flexible households. While flexibility improves functionality, buyers also want private retreat areas.
3.9. Open concept layout with private master suite
Many modern layouts now isolate the primary bedroom from shared spaces to create a quiet retreat within the home. This improves comfort, reduces noise, and supports long-term livability. This layout is particularly attractive to couples, privacy-focused buyers, and aging homeowners planning to stay long term.

Finally, one of the most important but often overlooked elements of open layouts is storage
3.10. Open floor plan with storage-focused design
Storage planning is critical for maintaining usability in open homes. Without sufficient storage, clutter quickly reduces the visual appeal of open spaces. Modern layouts therefore integrate storage through built-in cabinetry, hidden shelving, and dedicated entry storage zones.

Storage-focused design
Among all factors buyers consider, storage remains one of the most overlooked aspects when choosing open floor plan house plans, yet it is essential for maintaining long-term functionality.
4. Open vs closed floor plan: Advantages, disadvantages, and 2026 trends
Choosing between open and closed layouts is no longer a simple design preference. In 2026, this decision is increasingly influenced by lifestyle needs, long-term flexibility, resale considerations, and even remote work requirements. Understanding the practical strengths and limitations of each approach helps buyers avoid choosing layouts based purely on visual appeal.
Rather than asking which layout is “better,” the more useful question is: which layout performs better for your lifestyle and future needs?
4.1. Advantages and disadvantages of open and closed floor plans
Open layouts prioritize flexibility and visual space, while closed layouts emphasize privacy and separation. Each has distinct advantages depending on how the home will be used.
|
Feature |
Open layout |
Closed layout |
|
Flexibility |
Very high – spaces can serve multiple functions |
Limited – rooms have fixed purposes |
|
Privacy |
Moderate – requires zoning strategies |
Strong – physical separation |
|
Natural lighting |
Excellent – light travels freely |
Moderate – rooms block light |
|
Noise control |
Moderate – sound travels easily |
Strong – better acoustic separation |
|
Space efficiency |
High – less wasted circulation |
Moderate – more hallway usage |
|
Resale appeal |
Strong in modern markets |
Stable but less trendy |
|
Layout adaptability |
Excellent for lifestyle changes |
Limited flexibility |
|
Remote work suitability |
Good with zoning |
Excellent with dedicated rooms |
|
Long-term usability |
High with good planning |
Good but less adaptable |
From a market perspective, well-designed open floor plan house plans typically attract stronger buyer interest because they align with modern lifestyle expectations. However, closed layouts still appeal to buyers who prioritize quiet environments and defined functional spaces.

Because neither option is perfect, the market is increasingly moving toward a third solution
4.2. Trend shift toward hybrid layouts in 2026
One of the most important residential design trends in 2026 is the rise of hybrid layouts. Instead of choosing fully open or fully closed designs, many modern homes now combine both approaches to better match real lifestyle needs.
While open layouts offer flexibility and spaciousness, they may lack privacy and noise control. Closed layouts provide separation but can feel restrictive. Hybrid layouts address this by keeping shared spaces such as the kitchen, dining, and living areas open while allowing bedrooms or work areas to be enclosed when needed. Common solutions include sliding partitions, glass dividers, pocket doors, and architectural zoning techniques that maintain openness while creating functional boundaries. These features allow spaces to adapt without major renovation.
This approach is gaining popularity because it supports long-term living needs such as remote work, family growth, and lifestyle changes. For many buyers evaluating floor plan house plans, hybrid layouts offer the best balance between flexibility and privacy, making them one of the most practical modern layout strategies.
5. Common mistakes to avoid when choosing open floor plan house plans
While open floor plan house plans offer strong advantages in flexibility and space efficiency, their success depends on how well the layout is planned. Many buyers focus on visual openness but overlook practical factors that determine long-term comfort and usability. Understanding these common mistakes helps ensure the layout performs well in everyday living.

Common mistakes
5.1. Choosing layouts without zoning strategy
A common mistake is assuming that removing walls automatically improves a layout. Without proper zoning, open spaces can feel disorganized and inefficient.
Buyers should always verify:
- Clearly defined activity zones
- Furniture layouts that support function
- Logical circulation paths
Good open design is not about removing structure, but replacing walls with intentional spatial organization.
5.2. Why most open floor plans feel messy after 6 months
Storage is critical in open layouts because clutter is more visible. Without adequate storage, even a well-designed open floor plan for home can feel cramped. Essential storage planning should include:
- Entry storage
- Kitchen pantry or overflow storage
- Bedroom closets
- Integrated living room storage
Modern layouts increasingly integrate storage into the architectural design rather than treating it as an afterthought.
5.3. Overcrowding open spaces
Another frequent mistake is placing too much furniture in open areas. Overcrowding reduces visual openness and disrupts circulation. Best practices include maintaining clear pathways, avoiding oversized furniture, and preserving visual balance. Open spaces should feel intentional, not filled.
5.4. Poor lighting distribution
Lighting strongly impacts both usability and perceived home quality. Open layouts require layered lighting rather than a single ceiling fixture.
Effective designs typically include:
- Ambient lighting for general visibility
- Task lighting for work areas
- Accent lighting to define zones
Layered lighting improves comfort, functionality, and visual depth.
5.5. Selecting style over functionality
Many buyers prioritize appearance over usability. However, long-term satisfaction depends on function. Before choosing a layout, buyers should evaluate:
- Movement flow
- Storage accessibility
- Lighting quality
- Adaptability to future needs
In practice, function should guide layout decisions, with style as a secondary consideration.
6. How presentation impacts open floor plan appeal in real estate
Beyond design, presentation plays a major role in how buyers perceive open layouts. Since most buyers first encounter properties online, strong visuals are essential for communicating spatial advantages.
Professional real estate marketing often uses:
- HDR editing to balance lighting
- Virtual staging to define space usage
- 3D rendering to visualize potential
- Clear floor plan graphics
Companies like Fotober help agents present open layouts more effectively through HDR enhancement, virtual staging, architectural rendering, and improved floor plan visuals. These improvements often result in higher engagement, stronger buyer perception, and faster sales.
In today’s digital real estate market, presentation is no longer just marketing support, it is part of how the property delivers value to buyers.
7. FAQs about open floor plan house plans
Are open floor plan house plans still popular?
Yes. It remains highly popular because they support modern lifestyle needs such as flexibility, natural light, and efficient space use. These layouts also make homes feel larger and more adaptable, which helps maintain strong demand in both new construction and resale markets.
Do open layouts improve resale value?
Often yes. Open layouts typically attract more buyers because they support modern living habits such as remote work and flexible space usage. While resale value depends on many factors, functional and adaptable layouts generally perform better in competitive markets.
Are open layouts cheaper to build?
In many cases, yes. Open layouts may reduce construction costs by using fewer interior walls, although some designs require structural supports. Overall, they often provide good cost efficiency relative to usability.
What matters most when choosing a layout?
Functionality should always come before appearance. Buyers should focus on storage, lighting, circulation, and flexibility to ensure the layout remains practical long term. Homes that perform well functionally typically deliver better long-term satisfaction and resale potential.
Conclusion
The best open floor plan house plans in 2026 are defined not by how open they appear, but by how intelligently they balance flexibility, functionality, and long-term livability. Buyers should focus on layouts that maximize usable space, provide clear zoning, and can adapt as lifestyle needs evolve. When chosen carefully, an open layout can improve daily comfort, enhance resale appeal, and make even modest-sized homes feel significantly more spacious. Ultimately, the right floor plan is not the one that looks the most impressive, but the one that works best for how you actually live.
Contact Fotober today to elevate your real estate listings with professional visual solutions.
- Facebook: fotobermedia.co
- YouTube Channel: Fotober
- TikTok Channel: @fotober
- Instagram: fotober_media
- Email support: [email protected]
- Hotline: +84 942 110 297



