10 Best 1200 Sq Feet Floor Plan Ideas (With Layout Examples, Dimensions & Cost Guide for 2026)


Share:
Table of Contents
- 1. What is a 1200 sq feet floor plan?
- 2. Why a 1200 sq feet floor plan is a smart choice for small homes
- 3. Top 10 best 1200 sq feet floor plan layout ideas
- • 3.1. 1200 sq feet floor plan with 2 bedrooms and 2 bathrooms
- • 3.2. 1200 sq feet floor plan with 3 bedrooms
- • 3.3. 1200 sq feet floor plan with home office
- • 3.4. 1200 sq feet floor plan including a car garage
- • 3.5. 1200 sq feet floor plan with basement option
- • 3.6. 1200 sq feet compact living design layout
- • 3.7. 1200 sq feet L-shaped floor plan
- • 3.8. 1200 sq feet floor plan with master suite
- • 3.9. 1200 sq feet floor plan with outdoor living space
- • 3.10. 1200 sq feet floor plan with open concept kitchen-living layout
- • Quick comparison of popular 1200 sq feet floor plan layouts
- 4. Smart design tips to optimize a 1200 sq ft floor plan layout
- 5. Case study: How Fotober optimized a 1200 sq feet floor plan for real estate marketing
- Conclusion
In today's housing market, where affordability and practicality matter more than ever, the 1200 sq feet floor plan has become one of the most searched home sizes among first-time buyers and people looking for affordable housing.
1. What is a 1200 sq feet floor plan?
A 1200 sq feet floor plan is considered a compact yet highly functional home layout typically designed with 2-3 bedrooms, 1-2 bathrooms, a kitchen, and a shared living area. Unlike larger homes that may include unused rooms, these homes focus on efficiency, smart zoning, and maximizing usable space.

A 1200 sq ft layout
A well-designed layout at this size can feel surprisingly spacious when it includes:
- Open concept layouts
- Smart storage integration
- Natural light optimization
- Multi-functional rooms
- Minimal hallway space
Architects often emphasize that layout quality matters more than square footage. A poorly designed 1500 sq ft home can feel smaller than a well-planned 1200 sq ft layout.
Before exploring layout ideas, here are key metrics buyers typically want to know:
|
Feature |
Typical Range |
|
Bedrooms |
2-3 |
|
Bathrooms |
1-2 |
|
Living room size |
180–250 sq ft |
|
Kitchen size |
100–160 sq ft |
|
Ideal household size |
2–4 people |
|
Build cost (US avg) |
$180k–$350k |
|
Annual maintenance |
20–35% lower vs 1800 sq ft |
|
Energy efficiency |
25% lower usage |
Many modern 1200 sq ft layout ideas are designed to maximize psychological space, how large a home feels rather than just physical size.
2. Why a 1200 sq feet floor plan is a smart choice for small homes
When buyers search for the ideal home size today, the conversation is shifting away from “How big is the house?” toward “How well does the space actually work?” A well-designed 1200 sq feet floor plan answers that question very well because it sits in what many architects consider the efficiency sweet spot, large enough for comfortable living, but compact enough to eliminate waste.
In practical terms, a 1200 sq ft home is typically enough for 2–3 bedrooms, an open living area, and functional storage without creating unused rooms that add cost but little daily value. That balance is exactly why this size has become especially popular among first-time buyers and downsizers.
2.1. Space efficiency advantages
One of the biggest strengths of a small house 1200 sq ft is that it forces intentional design. In larger homes, inefficient layouts can hide behind excess square footage. In smaller homes, every decision matters.
In fact, one of the most common questions buyers ask is: Is 1200 sq ft too small?
The honest answer: it depends more on layout quality than size. A poorly designed 1500 sq ft home can feel smaller than a well-planned 1200 sq ft one.
In inefficient layouts, common problems include:
- 10-18% of space used only for circulation
- Formal dining rooms rarely used in daily life
- Dead zones created by awkward room connections
- Oversized entry areas that add cost without function
Modern compact design approaches solve this by focusing on usable space instead of raw size.
In optimized layouts, improvements often include:
- Circulation reduced to around 5–7%
- Open living areas combining kitchen, dining, and living functions
- Built-in storage replacing empty corners
- Flexible spaces instead of single-purpose rooms
A simple example illustrates the difference:
|
Space type |
Traditional layout |
Optimized layout |
|
Hallway space |
150 sq ft |
70 sq ft |
|
Usable recovery |
— |
80 sq ft gained |
That recovered space alone can equal:
- A small home office
- A pantry extension
- A laundry zone
- Extra cabinetry
This explains why modern small home design increasingly follows one core rule:
Good layout decisions can make a small house feel significantly larger than it actually is. And once efficiency improves, the financial advantages become even clearer.
2.2. Cost benefits
Another reason buyers actively search for a small house 1200 sq ft is straightforward: ownership costs become much more manageable.

Cost benefits
Many buyers comparing options often ask: How much cheaper is a 1200 sq ft home compared to a larger house?
In most markets, the difference can be substantial both upfront and over time.
A typical comparison might look like this:
|
Category |
1200 sq ft home |
2000 sq ft home |
|
Average build cost |
$240,000 |
$420,000 |
|
Monthly HVAC |
~$110 |
~$190 |
|
Cleaning time |
~3 hours |
~5 hours |
|
Maintenance costs |
Lower |
Higher |
From a financial standpoint, choosing a budget house floor plan in this size range often results in:
- $80k–$150k lower purchase cost
- $800–$1500 annual utility savings
- Roughly 30% lower maintenance costs
For many entry buyers, this is not just about saving money, it directly affects loan approval, monthly stress levels, and long-term financial flexibility.
Lower housing costs also allow buyers to:
- Qualify more easily for mortgages
- Reduce financial risk
- Invest elsewhere
- Choose better neighborhoods
And that connects directly to changing lifestyle priorities.
2.3. Lifestyle compatibility
Housing trends show a clear shift: buyers increasingly value livability over size.
Instead of maximizing square footage, many buyers now prioritize:
- Lower maintenance requirements
- Energy efficiency
- Flexible work spaces
- Practical kitchens
- Multi-use rooms
This naturally fits the strengths of a well-planned floor plan.
A common buyer question today is: Who is a 1200 sq ft house best for?
Typically:
- First-time buyers
- Young professionals
- Small families
- Remote workers
- Downsizers
Millennials especially tend to prioritize:
- Smaller mortgages
- Shorter commutes
- Better locations
- Lower upkeep responsibilities
Industry data consistently supports one major behavioral shift:
Many buyers now prefer a smaller home in a prime location over a larger home further away. This reflects a broader move toward convenience, flexibility, and lifestyle optimization rather than pure size. But perhaps the most overlooked advantage of this home size is how adaptable it can be over time.
2.4. Long-term practicality
A persistent myth is that smaller homes are only suitable as starter properties. In practice, a thoughtfully designed 1200 sq feet floor plan can remain functional for many years because of its flexibility.
Another question buyers often ask is: Can you live long-term in a 1200 sq ft house?
The answer is yes, especially when the layout allows rooms to evolve with life changes.
A flexible layout can support:
- Young couples starting out
- Families with one child
- Work-from-home professionals
- Downsizing homeowners
- Rental income strategies
For example, a secondary bedroom in a 2 bedroom 1200 sq ft house can easily transition between roles such as:
- Home office
- Nursery
- Guest bedroom
- Gym space
- Studio
- Rental room
This adaptability is one of the reasons these homes maintain strong resale appeal. Buyers know they are not just purchasing space, they are purchasing flexibility. And that ultimately explains why this size remains one of the most searched home categories:
A 1200 sq ft home offers enough space to live comfortably, while staying affordable enough to remain practical long term.
3. Top 10 best 1200 sq feet floor plan layout ideas
Choosing the right floor plan with 1200 sq feet is not just about fitting rooms into a limited space. The best layouts are designed around how people actually live, minimizing wasted circulation space, improving natural light flow, and creating flexible areas that can adapt as needs change.
Based on current real estate design trends, buyer behavior, and architectural efficiency principles, these are the 10 most practical and marketable layout ideas for a modern 1200 sq ft home.
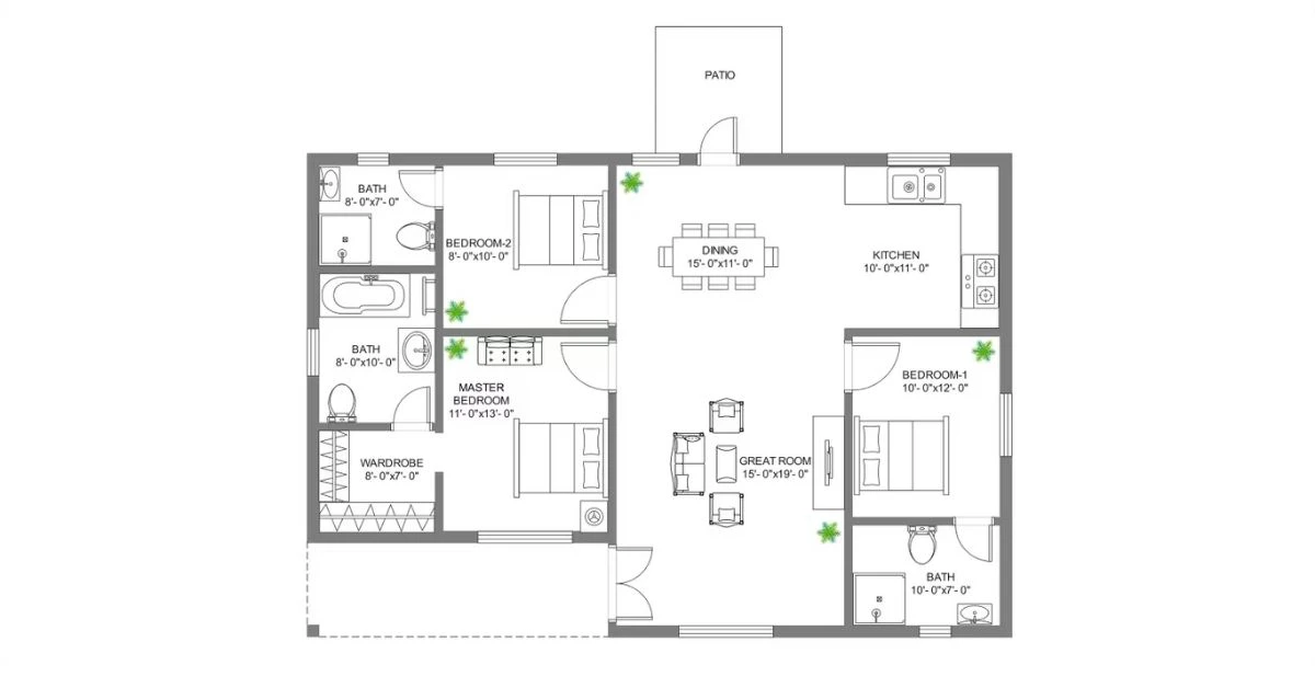
3.1. 1200 sq feet floor plan with 2 bedrooms and 2 bathrooms
This is widely considered the most balanced and resale-friendly configuration for a 1200 sq feet floor plan. It provides enough privacy for occupants while maintaining efficient shared spaces.
Typical layout structure:
|
Space |
Recommended size |
|
Living room |
200–240 sq ft |
|
Kitchen |
120–150 sq ft |
|
Master bedroom |
160–190 sq ft |
|
Bedroom 2 |
120–140 sq ft |
|
Bathrooms |
90–110 sq ft total |

Floor plan with 2 bedrooms and 2 bathrooms
Why this layout works well:
- Ideal for first-time buyers
- Works for roommates or small families
- Higher resale liquidity
- Flexible long-term usage
From a market perspective, agents often report this layout attracts the largest buyer pool because it balances affordability and usability.
3.2. 1200 sq feet floor plan with 3 bedrooms
A 3-bedroom version focuses on maximizing occupancy rather than maximizing room size. This layout is especially popular in affordable developments where buyers prioritize bedroom count.

Typical design approach:
- Bedrooms sized between 100–130 sq ft
- Shared hallway bathroom
- Open concept living area to compensate for smaller bedrooms
Advantages:
- Supports families with children
- Higher rental potential
- Better investment flexibility
Trade-offs:
- Smaller individual rooms
- Limited storage unless planned carefully
This remains one of the most requested small house 1200 sq ft layouts among developers targeting entry-level housing.
3.3. 1200 sq feet floor plan with home office
With remote work now a permanent reality, layouts that incorporate dedicated workspace areas are becoming increasingly valuable.
Floor plan with home office
Typical office space:
- 70-100 sq ft
- Often converted from bedroom 3 or flex room
- Positioned near natural light
Smart planning strategies:
- Sliding doors to reduce noise
- Built-in desk systems
- Murphy bed conversion for dual use
From a marketing perspective, listings that clearly show office functionality often receive significantly higher engagement because buyers can immediately visualize work-from-home potential.
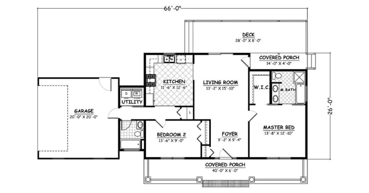
3.4. 1200 sq feet floor plan including a car garage
In suburban markets, a garage is often considered essential rather than optional. Integrating one into a floor plan requires careful space balancing.

Floor plan with garage
Typical garage dimensions:
12 × 20 ft (single car)
Design considerations:
- Entry directly into kitchen or mudroom
- Storage loft above garage
- Reduced hallway space to compensate
Benefits:
- Storage flexibility
- Weather protection
- Tool organization
- Increased resale value
Many modern budget house floor plan designs include garages because buyers increasingly expect them.
3.5. 1200 sq feet floor plan with basement option
A basement can dramatically increase effective living space without increasing the home's footprint.

Example configuration below
Main floor:
1200 sq ft
Basement:
700-900 sq ft
Total usable space:
Up to 2100 sq ft
Basement usage options:
- Rental suite
- Storage area
- Gym
- Media room
- Guest space
From an investment standpoint, basement-ready layouts often increase property value because they allow future expansion.
3.6. 1200 sq feet compact living design layout
Minimalist layouts are built around eliminating wasted space and prioritizing functionality.
Design principles include:
- Open central living space
- Minimal corridors
- Multi-purpose furniture areas
- Efficient storage walls
Typical efficiency metrics:
Hallway space reduced from 12% → 6%
Usable living space increased by 80 sq ft equivalent

This approach defines modern compact living design philosophy
3.7. 1200 sq feet L-shaped floor plan
L-shaped homes are popular because they naturally separate living and sleeping zones.
Advantages:
- Bedroom privacy
- Noise separation
- Opportunity for courtyard space
- Better sunlight distribution
Best suited for:
Corner lots
Modern architecture styles
Privacy-focused homeowners

This is one of the more architecturally interesting 1200 sq ft layout ideas
3.8. 1200 sq feet floor plan with master suite
Adding a master suite increases comfort and perceived luxury without increasing total size.

A master suite in floor plan
Typical master suite features:
- 150–180 sq ft bedroom
- Walk-in closet
- Private bathroom
Advantages:
- Privacy
- Better resale positioning
- Appeal to couples
Even within a 2 bedroom 1200 sq ft house, this feature significantly improves buyer perception.
3.9. 1200 sq feet floor plan with outdoor living space
Outdoor integration is increasingly important as buyers prioritize lifestyle space.

Outdoor integration
Common additions:
- 100–150 sq ft patio
- Covered porch
- Deck connection to living room
Benefits:
- Extends usable living space
- Improves property appeal
- Encourages lifestyle marketing
Studies show listings featuring outdoor living areas can see engagement improvements of up to 20%.
3.10. 1200 sq feet floor plan with open concept kitchen-living layout
One of the most effective modern strategies is removing barriers between kitchen, dining, and living areas.

Kitchen-living room layout
Typical configuration:
- Kitchen island as divider
- Shared dining zone
- Continuous flooring
Advantages:
- Makes home feel 15-25% larger
- Improves natural light flow
- Better social interaction
- Flexible furniture placement
- From a design psychology perspective, open layouts improve how spacious a home feels even without increasing square footage.
This approach is now considered essential in modern 1200 sq ft floor plan design.
Quick comparison of popular 1200 sq feet floor plan layouts
|
Layout type |
Best for |
Flexibility |
Construction impact |
|
2 bed 2 bath |
Couples |
High |
Low |
|
3 bedroom |
Families |
Medium |
Low |
|
Office layout |
Remote workers |
High |
Medium |
|
Garage plan |
Suburban buyers |
Medium |
Medium |
|
Basement plan |
Long-term buyers |
Very high |
Medium |
|
Compact design |
Minimalists |
Medium |
Very low |
|
L-shape layout |
Privacy buyers |
Medium |
Medium |
|
Master suite |
Couples |
High |
Medium |
|
Outdoor living |
Lifestyle buyers |
Medium |
Medium |
|
Open concept |
Modern buyers |
Very high |
Low |
4. Smart design tips to optimize a 1200 sq ft floor plan layout
Designing a comfortable 1200 sq ft home is about smart layout decisions rather than reducing features. Well-planned small homes can achieve 15-30% more usable space compared to inefficient layouts through better zoning, storage, and lighting strategies.

Smart design tips for floor plan
4.1. Open concept strategies
Reducing unnecessary walls is one of the most effective ways to increase perceived space. Modern layouts typically combine kitchen, dining, and living areas into one flexible zone instead of separating them.
Key benefits:
- Better natural light
- Improved traffic flow
- Greater flexibility
- Increased visual depth
Measured impact:
- Removing interior walls can recover 50-100 sq ft
- Perceived space improves 15-25%
- Movement efficiency improves 10-20%
Most optimized layouts dedicate about 40-45% of the home to an open living core.
4.2. Multi-functional rooms
Small homes must support multiple uses per space. With good planning, a 1200 sq ft home can support 5-7 functional zones.
Common examples:
- Office + guest bedroom
- Dining + workspace
- Living room + media area
Convertible furniture helps maximize usability:
- Murphy beds save 30-40 sq ft
- Foldable desks save 10-15 sq ft
- Extendable tables save 15-25 sq ft
Smart furniture choices can add 80-120 sq ft of functional usability without increasing size.
4.3. Storage optimization
Storage planning strongly affects how spacious a small home feels. Experts recommend allocating 8-12% of total area to storage (about 95-140 sq ft).
Effective strategies:
- Floor-to-ceiling shelving
- Built-in cabinetry
- Under-bed storage
- Vertical kitchen cabinets
Good storage design can:
- Reduce clutter 30-40%
- Improve perceived space 10-15%
- Reduce need for extra furniture
4.4. Natural light planning
Natural light significantly impacts perceived room size. A common guideline is window area equal to 15-20% of floor area in main spaces.
Effective techniques:
- Large windows and glass doors
- Light interior colors
- Continuous flooring
- Higher ceilings (8–9 ft)
These choices can improve perceived space by 10-30% depending on implementation.
4.5. Furniture layout strategy
Proper furniture placement is essential for usability. Key spacing guidelines include:
- Walkways: 36 inches
- Kitchen aisles: 40–48 inches
- Bed clearance: 24–30 inches
Common mistakes:
- Oversized furniture
- Blocking movement paths
- Too many small pieces
Better strategies:
- Floating furniture layouts
- Properly scaled pieces
- Using rugs to define zones
Small adjustments can improve usable movement space by 10–20%.
5. Case study: How Fotober optimized a 1200 sq feet floor plan for real estate marketing
In real estate marketing, a good floor plan is not just a technical drawing, it is a sales communication tool. Many listings fail not because the property is bad, but because buyers cannot quickly understand how the space works.
At Fotober, we have seen that when buyers hesitate to understand a layout, they often skip the listing entirely. This is especially true with smaller homes like a floor plan, where clarity of space usage directly affects perceived value.

2D and 3D floor plan
To illustrate this, here is a real workflow example similar to projects we typically handle for developers and real estate marketing teams.
5.1. Project overview
A small residential developer approached Fotober to improve the marketing presentation of a 1200 sq ft starter home targeting first-time buyers. The property itself was well designed, but the marketing materials were not communicating the value effectively.
The original listing used:
- A basic black-and-white CAD floor plan
- No furniture references
- No lifestyle visualization
- No spatial explanation graphics
From a marketing perspective, this created three major problems:
Problem 1 – Buyers could not easily understand the layout
Without furniture or scale references, many buyers could not visualize:
- Bedroom sizes
- Living space usability
- Kitchen workflow
- Storage capacity
Analytics from the listing showed many users spent less than 8-12 seconds on the floor plan image before scrolling.
Problem 2 – Low engagement performance
Compared to similar properties in the same price segment:
- Click-through rate was about 20–25% below average
- Save/share activity was minimal
- Few buyers viewed the floor plan image twice
Problem 3 – Slow inquiry conversion
Agents reported that buyers frequently asked basic clarification questions such as:
- Is the living room big enough?
- Can a dining table fit here?
- Is this really a 2-bedroom layout?
These questions indicated the visuals were not doing their job: reducing buyer uncertainty.
The developer’s goal was simple: Make the layout easier to understand and increase listing engagement without changing the property itself.
5.2. Fotober optimization process
Instead of changing the architecture, Fotober focused on improving how the layout was visually communicated. The approach followed a structured real estate visualization workflow often used for developer marketing packages.
The process included five main steps:
Step 1 – Layout redraw for marketing clarity
Step 2 – Realistic furniture placement
Step 3 – Color zoning strategy
Step 4 – Marketing graphic enhancements
Step 5 – Listing presentation optimization
5.3. Results
After updating the visuals, the developer replaced the original floor plan across their listing platforms. Performance improvements were measured over the following 30–45 days.
Observed improvements included:
Engagement improvements:
- 32% increase in floor plan image clicks
- 18% increase in average viewing time
- About 22% more saves/bookmarks
Buyer behavior improvements:
- Fewer clarification questions from buyers
- More qualified inquiries
- Faster decision discussions
Sales process improvements:
- Shorter explanation time during showings
- Better buyer confidence in layout functionality
- Faster inquiry responses after listing updates
Agents also reported that buyers referenced the floor plan more frequently during conversations, which is usually a strong buying signal.
One important takeaway from this case:
When buyers clearly understand how a space works, they are significantly more likely to engage with the listing.
This is why professionally presented floor plans are increasingly considered part of conversion optimization rather than just design assets.
Conclusion
For smaller homes especially, clarity can directly influence perceived value. A well-presented 1200 sq feet floor plan does not just show dimensions, it helps buyers quickly answer the most important question:
Contact Fotober today to elevate your real estate listings with a professional floor plan and photo editing.
- Facebook: fotobermedia.co
- YouTube Channel: Fotober
- TikTok Channel: @fotober
- Instagram: fotober_media
- Email support: [email protected]
- Hotline: +84 942 110 297


